← Under Sink Wiring: The Safe Electrical Guide! Basic home electrical wiring guide ADA Sink Faucet Diagram: Accessibility Made Simple! Ada kitchen sink base cabinet requirements →
If you are looking for plumbing diagram shower/sink/hydronic | Ram Promaster Forum you've came to the right place. We have 25 Pictures about plumbing diagram shower/sink/hydronic | Ram Promaster Forum like Plumbing_Riser_Diagram_ada | PDF | Toilet | Hydrology, Plumbing Riser Diagram Symbols and also a red and black photo with the words plumbing riser diagram on it's side. Here you go:
Plumbing Diagram Shower/sink/hydronic | Ram Promaster Forum
plumbing diagram shower/sink/hydronic | Ram Promaster Forum
What Is A Riser Diagram Plumbing - Wiring Work
what is a riser diagram plumbing - Wiring Work
Kitchen Sink Plumbing Diagram With Dishwasher

Kitchen Sink Plumbing Diagram With Dishwasher
Efficient Plumbing Diagram For Installing A Dishwasher In A Kitchen Sink

Efficient plumbing diagram for installing a dishwasher in a kitchen sink
Plumbing Riser Diagram Symbols

Plumbing Riser Diagram Symbols
A Comprehensive Diagram Of Kitchen Sink Plumbing Including A Dishwasher

A Comprehensive Diagram of Kitchen Sink Plumbing Including a Dishwasher
Sanitary Riser Diagram

Sanitary Riser Diagram
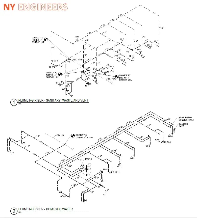
Plumbing Riser Diagram | Plumbing Services - NY Engineers

Plumbing Riser Diagram | Plumbing Services - NY Engineers
Sanitary Riser Diagram For Dishwasher And Sink Connection Ri

Sanitary Riser Diagram For Dishwasher And Sink Connection Ri
Plumbing Riser Diagram

Plumbing Riser Diagram
Sanitary Riser Diagram For Dishwasher And Sink Connection Ri

Sanitary Riser Diagram For Dishwasher And Sink Connection Ri
I Can Draw Your Residential Plumbing Riser Diagram - AsktheBuilder.com

I Can Draw Your Residential Plumbing Riser Diagram - AsktheBuilder.com
Plumbing_Riser_Diagram_ada | PDF | Toilet | Hydrology
Plumbing_Riser_Diagram_ada | PDF | Toilet | Hydrology
Understanding Plumbing Riser Diagrams Explained

Understanding Plumbing Riser Diagrams Explained
Plumbing Riser Diagram Symbols - Wiring Diagram Pictures

Plumbing Riser Diagram Symbols - Wiring Diagram Pictures
Sanitary Riser Diagram For Dishwasher And Sink Connection Ri
Sanitary Riser Diagram For Dishwasher And Sink Connection Ri
Efficient Plumbing Diagram For Installing A Dishwasher In A Kitchen Sink

Efficient plumbing diagram for installing a dishwasher in a kitchen sink
Sanitary Riser Diagram For Dishwasher And Sink Connection Ri

Sanitary Riser Diagram For Dishwasher And Sink Connection Ri
A Red And Black Photo With The Words Plumbing Riser Diagram On It's Side

a red and black photo with the words plumbing riser diagram on it's side
Plumbing Riser Diagram | Plumbing Services | New York Engineers

Plumbing Riser Diagram | Plumbing Services | New York Engineers
Plumbing Under Kitchen Sink Diagram With Dishwasher

Plumbing Under Kitchen Sink Diagram With Dishwasher
Plumbing Riser Diagram Software

Plumbing Riser Diagram Software
Plumbing Under Kitchen Sink Diagram With Dishwasher | Besto Blog

Plumbing Under Kitchen Sink Diagram With Dishwasher | Besto Blog
Water Flows Up Vent Stack, Rather Than Out Waste Pipe (kitchen Sink)

Water flows up vent stack, rather than out waste pipe (kitchen sink)
Kitchen Sink Plumbing Diagram With Dishwasher | Besto Blog

Kitchen Sink Plumbing Diagram With Dishwasher | Besto Blog
Plumbing riser diagram symbols. plumbing riser diagram. plumbing under kitchen sink diagram with dishwasher